DOMEK LETNISKOWY L60 5x5m ZE ŚCIANKĄ KOLANKOWĄ
- Domek wykonany z drewna sosnowego I Gatunku
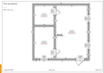
- Wymiary podstawy domku 500 x 500 cm
- Domek z antresolą w stylu kanadyjskim
- Konstrukcja szkieletowa z kantówki 10x4cm
- Ściany domu wykonane z podbitki sosnowej łączonej metodą kanadyjską na pióro-wpust o grubości 20mm
- Wysokość całkowita około 500 cm
- Wysokość ścian bocznych 220 cm
- Kąt nachylenia dachu 38 stopni
- Podłoga wewnętrzna sosnowa techniczna gr. 25 mm
- Drzwi metalowe na klamke i zamek
- 4 Okna PCV komorowe dwuszybowe rozwierno- uchylne z szybą zespoloną
- Impregnowany dwukrotnie preparatem Drewnochron (podkład plus kolor do wyboru klienta)
- Impregnowany jednokrotnie wewnątrz na bezbarwny
- Pokryty gontem bitumicznym (kolor i kształt do wyboru klienta)
Cena: 40000.00zł
Cena obejmuje:
- Kompletny domek jak na zdjęciu bez ocieplenia (w stanie surowym zamkniętym)
- Dach pokryty gontem bitumicznym
- Dwukrotną (podkład i kolor) impregnację
- Ścianke kolankową 60 cm
- 4 okna PCV
- Drzwi metalowe na klamke i zamek
- Podłoge drewnianą na legarach 4x10cm
- Antresola 14 m2
- Łazienka 3,24 m2
- Sypialnia 5,24 m2
- Salon 13,9 m2
Za dodatkową opłatą :
- Dodatkowe okno
- Okiennice
- Wiatroizolacja na ścianach
- Ocieplenie podłogi wełną mineralną
- Ocieplenie ścian oraz dachu wełną mineralną
- Wykończenie boazerią w środku
- Instalacja elektryczna
- Rynny PCV
- Profesjonalny montaż na terenie całej Polski
- Transport na terenie całej Polski
Realizujemy też inne wymiary domków

+48 724 793 335
























